Přejít na obsahovou část stránky
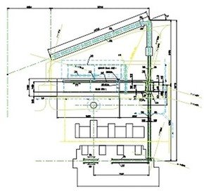
Technické specifikace
Dopravní výkon 400 t/h na skládku
200 t/h ze skládky
Šířka dopravních pasů 1 000 / 800 mm
Délka dopravních pasů 118 m
Kapacita skládky 8 500 m3 hnědého uhlí
Rekonstrukce zauhlování schéma
Rekonstrukce zauhlování schéma

Prohlédněte si náš produkt

ANCHOR_TOP_TITLE

Tento web využívá cookies

Tento web používá k poskytování služeb, personalizaci reklam a analýze návštěvnosti soubory cookie. Používáním tohoto webu s tím souhlasíte. Zobrazit podrobnosti

Nastavení cookies

Vaše soukromí je důležité. Můžete si vybrat z nastavení cookies níže. Zobrazit podrobnosti